THE GAFFORD FLOOR PLAN
The Gafford
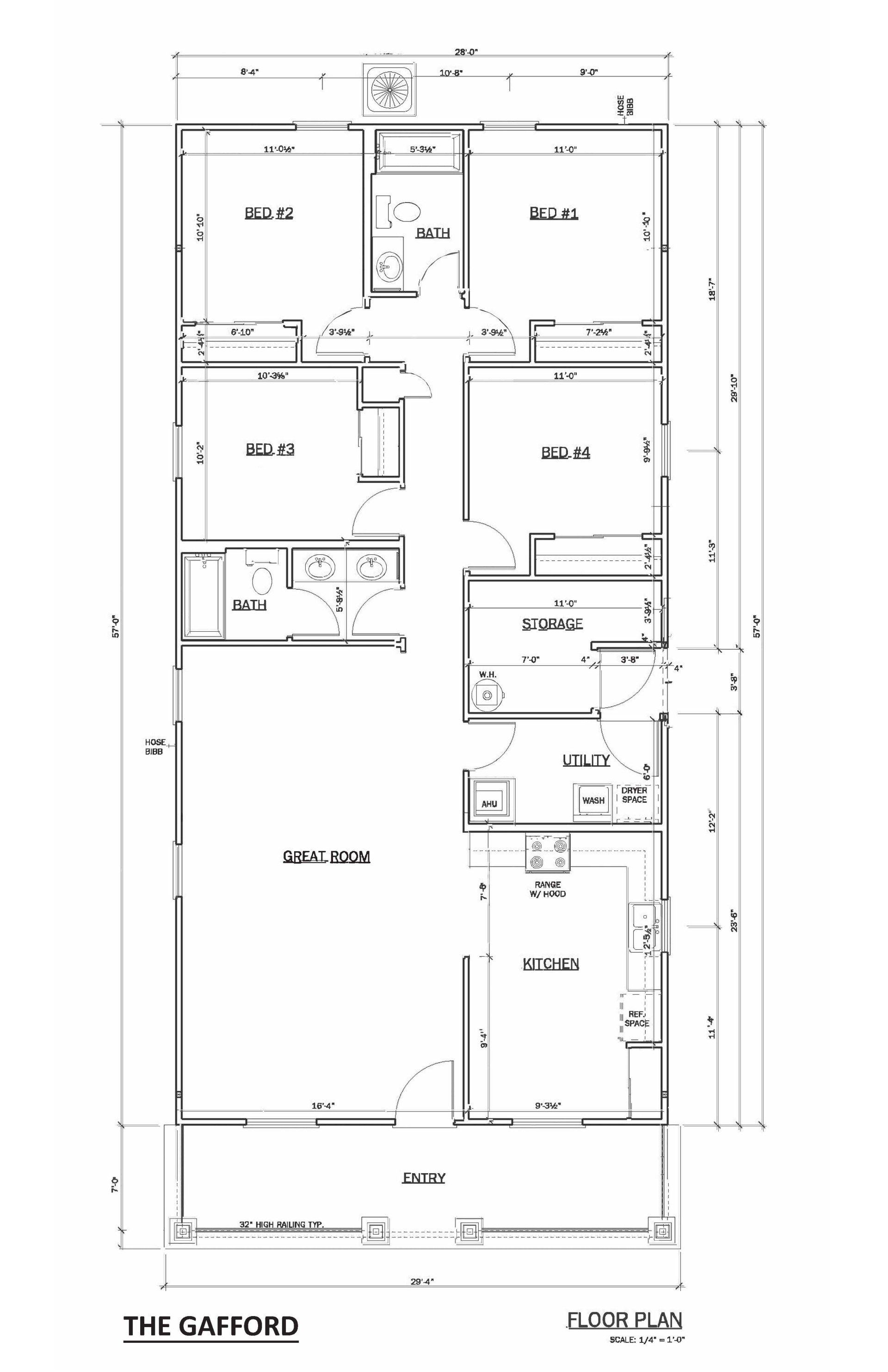
Our new Gafford homes in Orange County's Holden Heights neighborhood offer plenty of space for a growing family – or one that would enjoy some “bonus rooms.” This four-bedroom, two-bathroom floor plan allows for some added privacy with the living spaces placed at the front of the house. This home centers around the living spaces: an open-floor area that includes the great room and kitchen. The two wings of the house each include two bedrooms, which each share a bathroom.
You can expect more from a Habitat home like The Gafford: perks such as select appliances, more beauty with our Florida friendly landscaping, and more smart design with our energy-efficient construction practices. Storage areas include a laundry room, linen closet, and outdoor closet.
Take a home tour of the Valiente, which is similar to The Gafford:







